LE TEXTILE COMME OUTIL ARCHITECTURAL EN RENOVATION
QUAI VAN BENEDEN 1, LIEGE — PROJET FINAL D’ETUDE / MEMOIRE — MASTER 2 / 2020-2021
SITUATION EXISTANTE & CONTEXTE
Enjeux - Installation d’un atelier textile (parfois ouvert au public) au sein d’une habitation en rez-de-chaussée, d’un quartier animé.
Clients - Un couple de designer textile dont la vie est rythmés par la création, le textile, la fête, les proches mais aussi des moments de calme et leur intimité en tant que couple.
Objectifs - Utiliser le textile au maximum dans l’architecture d’intérieur, depuis la rénovation jusqu’à l’intervention scénographique. Le tout dans un esprit d’écologie et de durabilité.
MOODBOARD
Toutes les formes de textiles sont utilisées dans ce projet, depuis l’isolation thermique/phonique jusqu’au mobilier, cloison, revêtement et brise-vue.
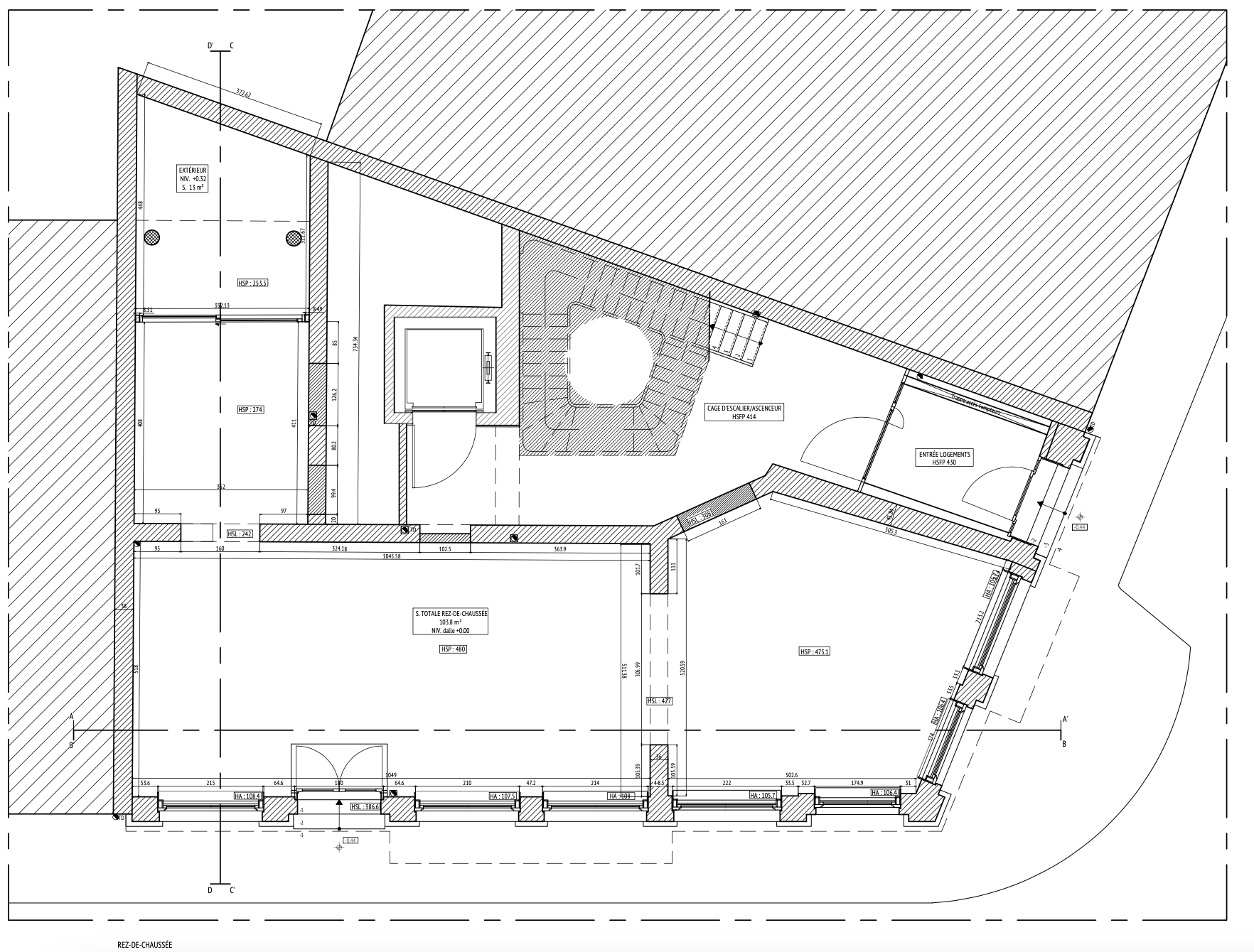
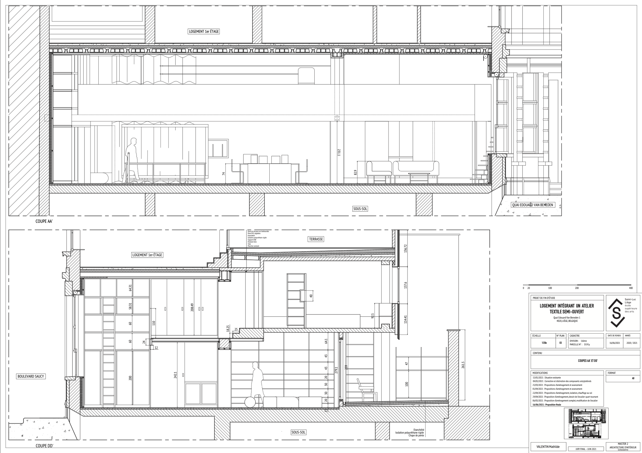
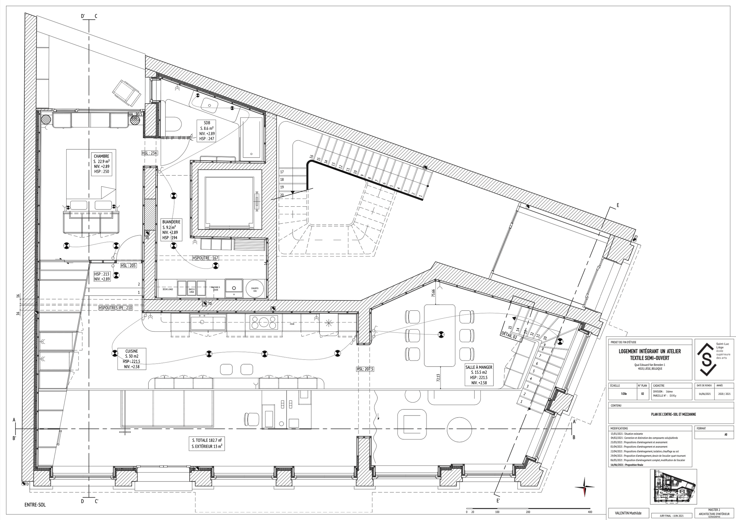
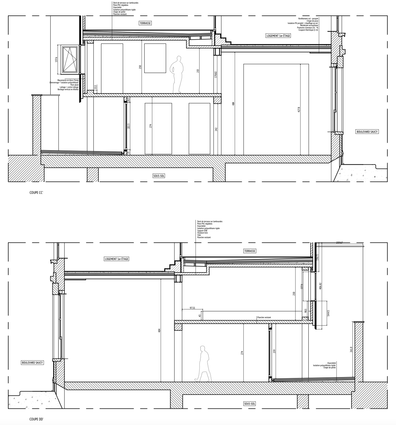
PLANS SITUATION PROJETéE — LOGEMENT INTégrant un atelier textile semi-ouvert
production graphique sur Autocad
— Photos Réalistes —
LOGEMENT INTégrant un atelier textile semi-ouvert
production graphique sur sketchup
Espace détente privé + cour - Rez-de-chaussée
Atelier Textile - Rez-de-chaussée
Atelier Textile + entrée public - Rez-de-chaussée
Salon + cube entrée + WC invité - Rez-de-chaussée
Salle à manger - Mezzanine
Cuisine - Mezzanine
Cuisine + espace dinatoire - Mezzanine
Chambre + dressing - Entre-sol
Chambre vue sur cour - Entre-sol
Salle de bain - Entre-sol
Salle de bain/WC - Entre-sol